办公室深化设计图纸,通过现场实际测量尺寸并和客户沟通所需以及设计师的创意,绘制平面类图纸包括(综合平面布置图、隔墙放线图、天花综合布置图、天花灯具定位图、天花造型定位图、地面综合铺装图、地面尺寸放线图、立面索引图等)。
办公室深化设计图纸,通过现场实际测量尺寸并和客户沟通所需以及设计师的创意,绘制平面类图纸包括(综合平面布置图、隔墙放线图、天花综合布置图、天花灯具定位图、天花造型定位图、地面综合铺装图、地面尺寸放线图、立面索引图等)。
在做平面的同时,就结合空间关系,深化立面造型轮廓关系反射在平面图纸上,以最大限度精确图纸尺寸精准性,同时水电设计师也会在这个阶段介入工作。
通常平面类图纸所耗费工作量较大,平面类图纸做详细精准了,后面的工作也迎刃而解。平面类图纸完成后交给项目总设计师审核,平面类图纸整体没大问题后,就进入立面图深化设计阶段。
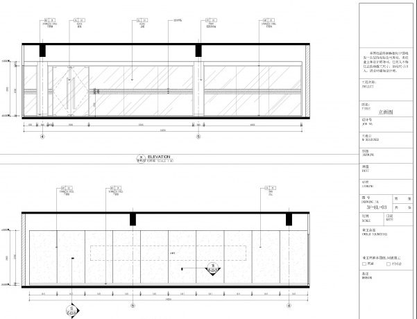
在立面图深化过程中去微调整平面的修改意思,实现平面与立面无缝结合。立面图需要每个空间都绘制施工图,立面顾名思义是表达空间立面关系材料的图纸,为了让后面大样设计工作快速与准确,通常在绘制立面图时就需要把大样的内部关系表达出来。

立面图纸完成后应提交给总设计师审图、或者给甲方审图。大样剖面阶段所表达的每一个收口、材料交接、造型关系等地方,通过以放大图、剖面图形式表达。把造型的内部结构关系、造型细部尺寸表达清楚。

大样图完成后,就需要把平面类、立面类、大样类图纸进行整合、所有空间图纸交接处审核,这三大类属于整套施工图的三大领域,需要完整准确。配合起来才是一套完整的施工图。

后期工作:门表图绘制、物料书绘制、封面目录制作、施工图设计说明填写等工作。包括图纸会审、现场技术交底等后期维护工作,以这整个流程称为施工图深化设计。

办公室深化设计图纸

办公室深化设计图纸