400平方米办公室装修案例
时间:2016-04-07 09:32来源:http://www.zsokay.com 作者:迪家装饰 点击:
次
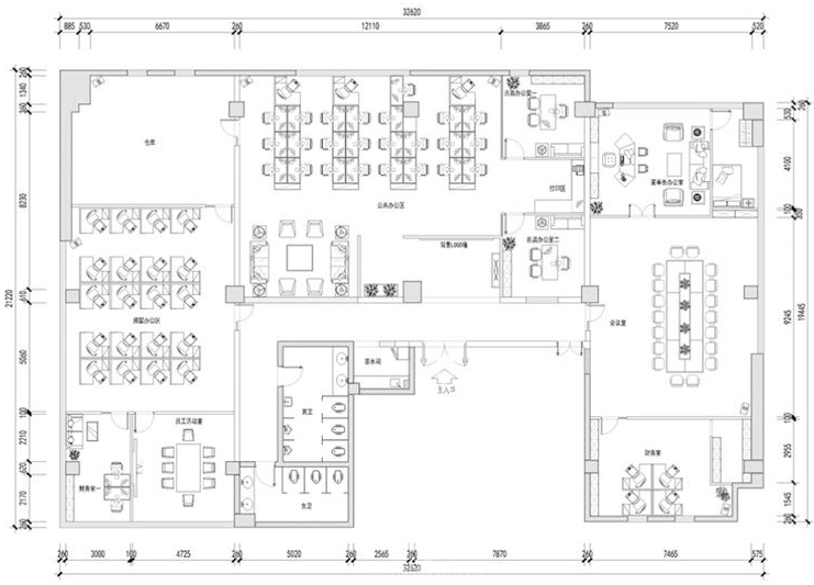
400平方米办公室装修案例,办公室整体采用现代风设计,在办公室设计中更多地考虑了开放式借景处理,尽可能的将室外的景色延展进来,办公室设计整体空间气氛仍然是延续整体的风格:稳重、简约、舒适,柔和的色调搭配地砖和百叶窗的设计,传递着精致且人性化的
400平方米办公室装修案例,办公室整体采用现代风设计,在办公室设计中更多地考虑了开放式借景处理,尽可能的将室外的景色延展进来,办公室设计整体空间气氛仍然是延续整体的风格:稳重、简约、舒适,柔和的色调搭配地砖和百叶窗的设计,传递着精致且人性化的办公格调,总经理办公室设计,整体采用黑灰色为主色调,体现出了一种沉稳、大气的感觉。

400平方米办公室装修案例

400平方米办公室装修案例

400平方米办公室装修案例

400平方米办公室装修案例
------分隔线----------------------------

- 脑力劳动为主的办公环

- 灵动而流动的空间感办

- 金融行业办公室设计方

- 项目管理软件公司办公

- 办公室设计单纯的像素

- 梅赛德斯奔驰办公空间

- 高级灰办公室潮酷设计

- 线预订世界各地住宿的